3 Bedroom Semi-Detached House, No 15 Meadowbrook
This is a well presented 3 Bedroomed Semi-Detached property presented…
€150,000
Moyglass, Co. Roscommon, Ireland
Sold
€59,000





















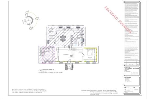
A two-story residence on c. 0.96-acre site, Folio No. RN3206F, in need of complete refurbishment and should qualify for the Derelict Grant. The property comprises of ground floor kitchen, living room, and bathroom; first floor open plan. It also has the benefit of full planning permission to construct new side, rear, and porch extensions and installation of a septic tank system and all associated site work. Set in an idyllic setting and bordered by mature trees, circa 5 km from Strokestown. There’s a large storage shed on site. Strokestown caters for all your needs and is a host town of the Family Museum in Walled Gardens, secondary and primary schools, doctor’s surgery, healthcare center, Spar and supermarkets, and the Percy French Hotel.
This is a well presented 3 Bedroomed Semi-Detached property presented…
€150,000
4 Bedroom, 2 Storey residence on a large site within…
€95,000
Church Street, Strokestown, Co. Roscommon. F42 CV60 Ireland.
+353 (0)71 963 4737
+353 (0)87 602 5597
Selling Properties since 1938
2024 Copyright Kieran Leavy Auctioneers – All Rights Reserved
Design by websmiths